土地販売(仲介)
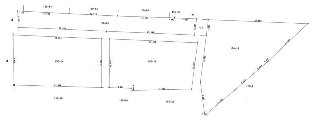
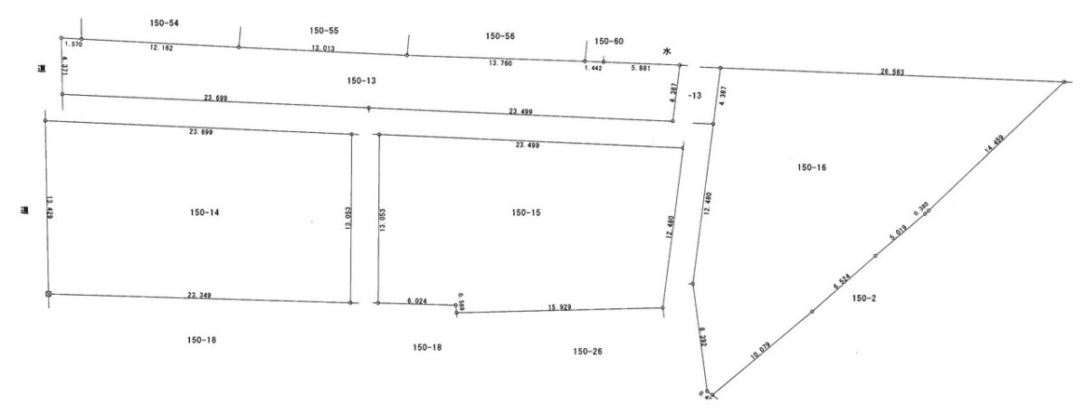
秋田市将軍野東3丁目150番13他3筆
横山金足線に近く、アクセス良好
Data
- 所在地
- 秋田市将軍野東3丁目150番13他3筆
- 土地面積
- 1,178㎡ (356.34坪)
- 交通
- JR土崎駅まで約1.9km
1,000㎡を超えるゆとりの広さ
Access所在地
Outline物件概要
- 所在地
- 秋田市将軍野東3丁目150番13他3筆
- 土地面積
- 1,178㎡ (356.34坪)
- 都市計画
- 市街化区域
- 用途地域
- 第一種低層住居専用地域
- 建ぺい率
- 50%
- 容積率
- 80%
- 地目
- 原野
- 接道状況
- 西側 幅員4.5m 公道
- 土地権利
- 所有権
- 地勢
- 平坦
- 設備
- 上水道(前面道路)、下水道(宅内)、都市ガス(宅内)
- 現況
- 更地
- 最適用途
- 住宅用地
- 学区
- 土崎南小学校(約1.9km)
将軍野中学校(約2.0km) - 交通
- JR土崎駅まで約1.9km
- 取引態様
- 媒介
- 価格
-
2,200万円(坪単価 61,738円)











